Каминная топка Spartherm серии Varia - это топки из низколегированной стали с антикоррозионным покрытием, камера сгорания футерована высококачественным шамотом цвета слоновой кости - гладкая однородная наружная поверхность шамотной футеровки имеет закрытые поры для обеспечения низкого уровня приставания сажи и лучшего горения. Помимо самоочищающихся стекол и системы вторичного дожига, они комплектуются вращающимся патрубком отвода продуктов горения, что упрощает подключение каминных топок к дымоходу, а также системой подачи воздуха и отвода раскаленных газов, что существенно повышает КПД. Каминные топки серии Varia имеют отвод для подключения патрубка подачи воздуха из-за пределов помещения, в котором они устанавливаются (подвод наружного воздуха). Это актуально в тех случаях, если объем помещения, в котором установлен камин, не обеспечивает нужный приток воздуха, необходимый для нормального горения топлива.
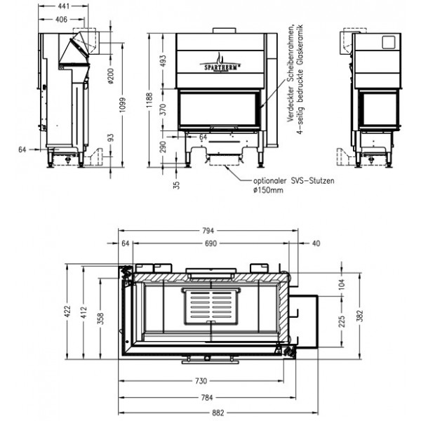
Spartherm Varia AS-2Lh классическая, угловая обзорная каминная топка дизайнерской серии Varia немецкого завода Spartherm. Дверь открывается вбок или вверх, регулируемые по высоте ножки, высококачественный шамот цвета слоновой кости. Четырехстороннее исполнение рамки. Cкрытая рама дверки по боковым сторонам. По 4-м сторонам печать на стекле.
Каминные топки SPARTHERM – это изысканность, элегантность и современный дизайн. Компания использует в производстве новейшее оборудование на котором изготавливаются все изделия. Все топки проходят обязательную сертификацию в лаборатории компании перед тем как попадут в дом покупателя.
Покупая каминную топку SPARTHERM Вы всегда будете уверены что купили немецкое качество по самой оптимальной цене. Они отлично подойдут, как для коттеджа, так и для небольшого дачного домика и создадут непревзойденный уют и теплоту домашнего очага.
Преимущества каминных топок SPARTHERM:
- сталь из антикоррозийным покрытием;
- шамотная футеровка;
- cистема чистого стекла;
- различные конфигурации топок: газовые, дровяные, на биотопливе;
- гарантия завода на готовое изделие;
- немецкое качество сборки.


Нет отзывов о данном товаре, станьте первым, оставьте свой отзыв.
Нет вопросов о данном товаре, станьте первым и задайте свой вопрос.
Мы доставляем заказы по всей территории страны.
Сроки доставки заказа зависят от наличия товаров на складе. Если в момент оформления заказа все выбранные товары есть в наличии, то мы доставим заказ в течение 3 дней, в зависимости от удаленности Вашего региона. Если заказываемый товар отсутствует на складе, то максимальный срок доставки заказа может составить 3 недели. Но мы стараемся доставлять заказы клиентам как можно быстрее, и 90% заказов клиентов отправляются в течение первых 3 дней.
Способы оплаты:
- Оплата при получении
- Онлайн-оплата картой
- Оплата в терминале
- Безналичный расчет
Интернет-магазин – сайт имеющий адрес в сети Интернет. Товар – продукция, представленная к продаже в интернет-магазине. Клиент – разместившее Заказ физическое или юридическое лицо. Заказ – оформленный должным образом запрос Клиента на покупку Товара. Транспортная компания – третье лицо, оказывающее услуги по доставке Товаров Клиента
- Курьером по Киеву – 350 грн.
- самовывоз из нашего магазина;
-самовывоз из службы доставки;
- Оплата online (Visa/MasterCard)
- Пополнение карты ПриватБанк
- Повернення протягом 14 дней с момента отримання товара